Interior Design KL Malaysia

Cardinal Alpha

EQ Hotel, Level 5

Cardinal Alpha

EQ Hotel, Level 5

The space is defined by clean lines, open layouts, and a neutral color palette accented with bold, statement pieces. High-quality materi- als like glass, steel, and polished wood are used throughout, creating a refined yet welcoming atmosphere.

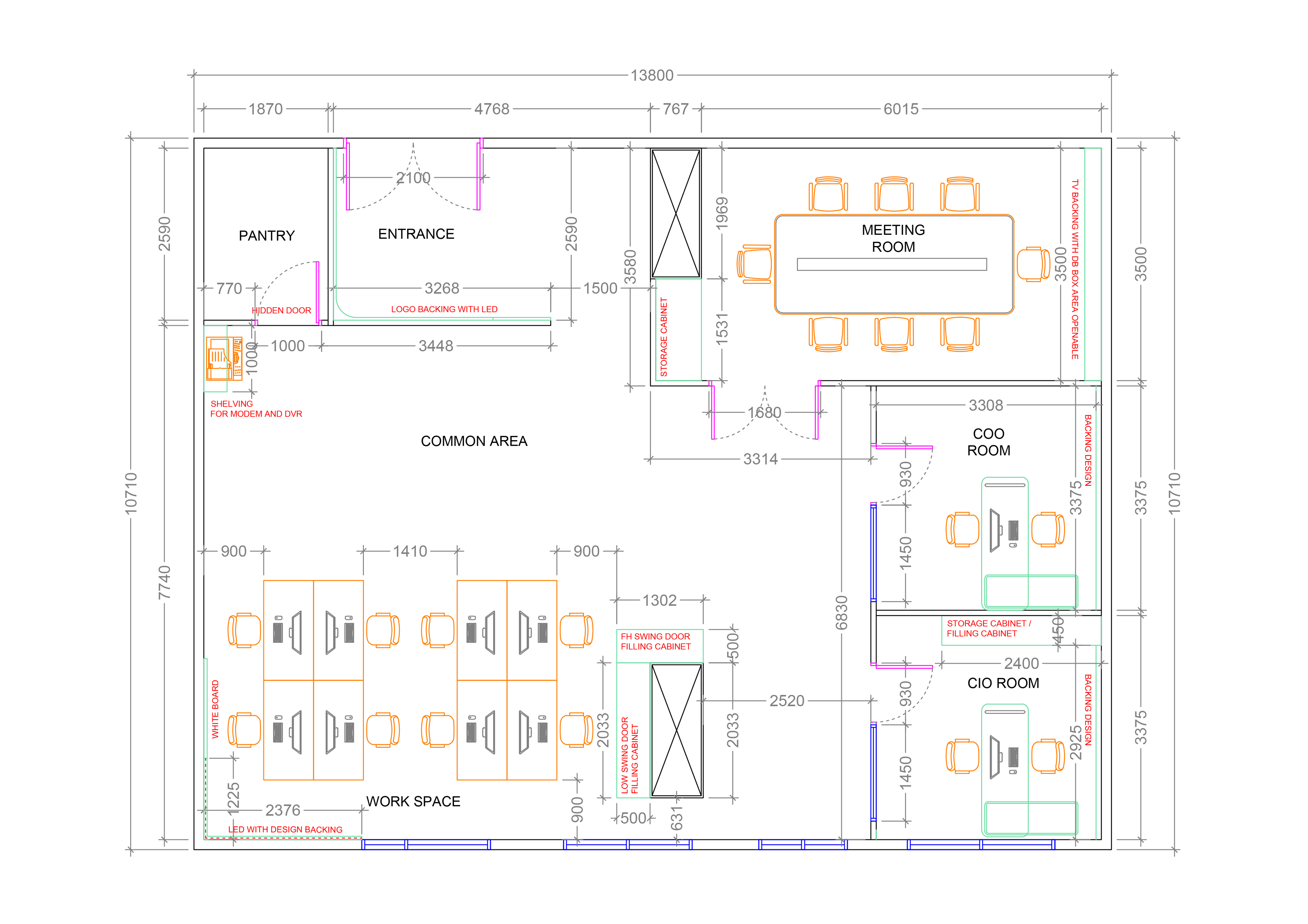
Floor Plan

Location

EQ Hotel, Level 4

Total Area

1,513 sqft

Budget

RM 150K

Concept

Modern Contemporary