
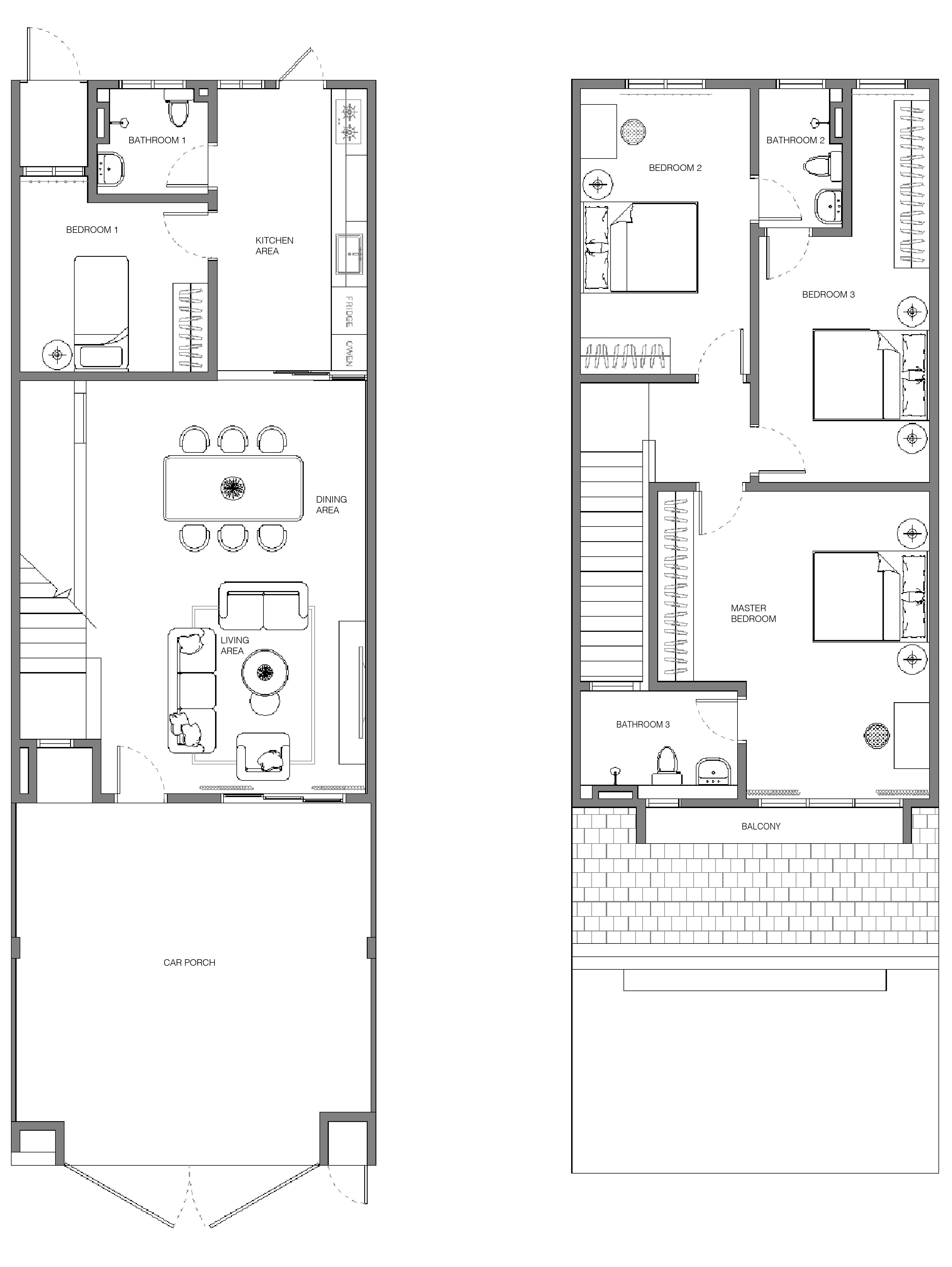
Rimbayu, Kota Komuning

3000 SQFT

300K

Muji Concept
Adding {{itemName}} to cart
Added {{itemName}} to cart