
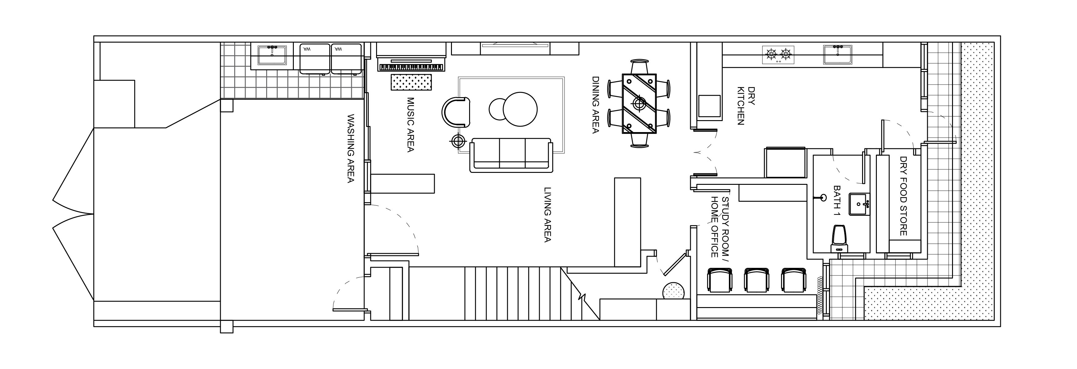
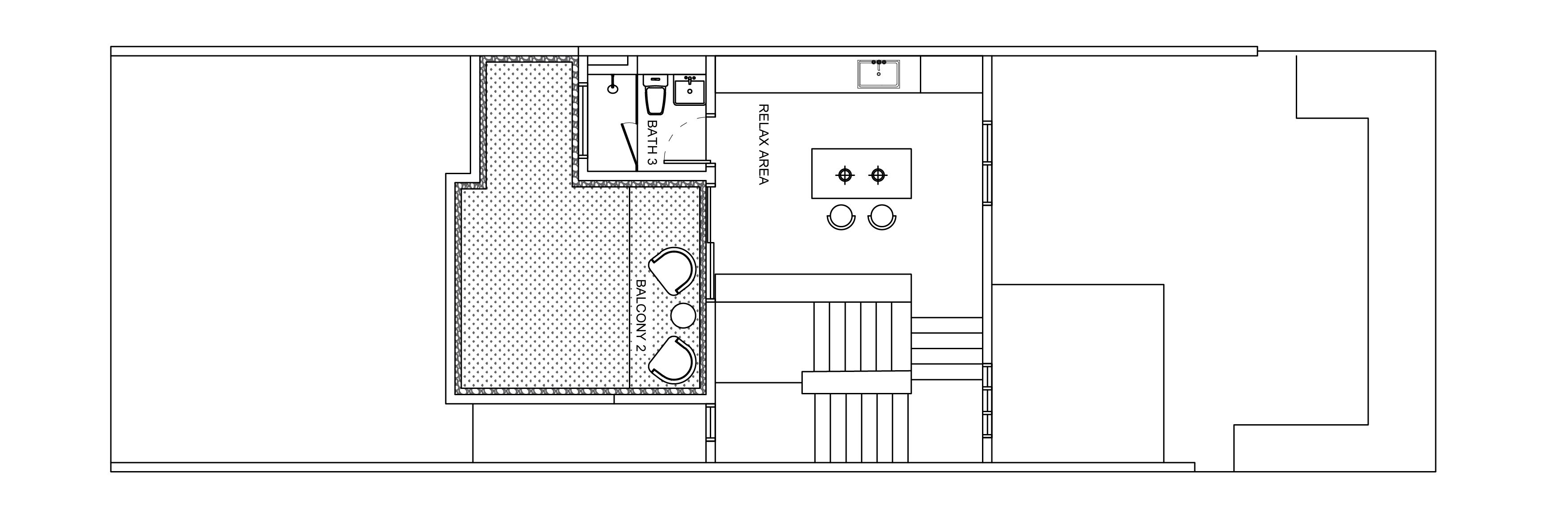
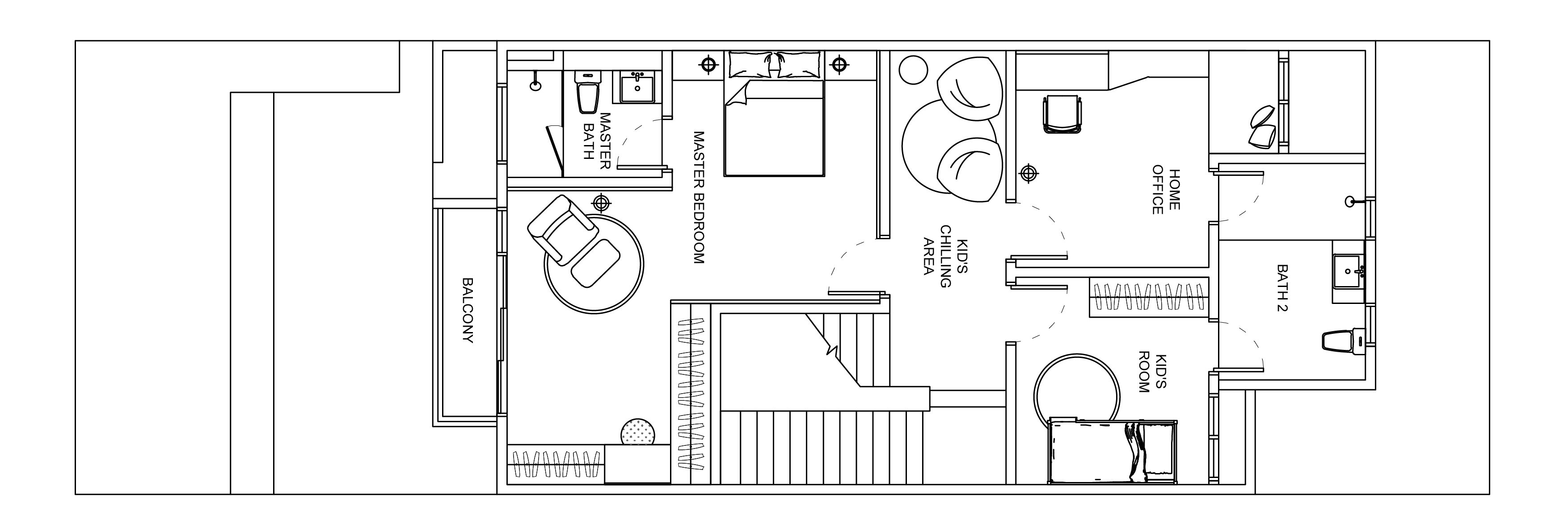
Melaka

3200 SQFT

450K

Modern Classic Concept
Adding {{itemName}} to cart
Added {{itemName}} to cart